Making a dream come true
by Dr. Joe Blaes
Foresight to select a building large enough for future expansion results in a model practice that features solid organization and management.
For more on this topic, go to www.dentaleconomics.com and search using the following key words: Tidewater Dental, Dr. Joe Blaes, Dr. David Cooper, Dr. Michael Owens, dream.
This is a very interesting dental practice. It is the story of a dentist who had the foresight to select a location with a building that would allow the practice to grow beyond what had been originally imagined. His dream was to build and expand this practice to become a model of the best organized and managed dental practice. He certainly made this dream come true.
Dr. David Cooper started his practice in 1977 in St. Mary's County in Lexington Park, Md., which is located about a mile from Patuxent River Naval Air Station (today this is one of the military bases that is expanding). He researched several areas that had a growth potential and a need for practicing dentists. He picked a great location and his practice began to grow. This first practice had four dental treatment rooms that were built, in part, from an old racquetball club.
Dr. Cooper felt that the management of the practice was taking him away from the dental chair. He could be more productive if someone else was managing the practice. He looked for the best practice–management consultant and eventually hired Linda Miles & Associates to help him improve his practice. Linda was known as the best in the business to get a practice ready to take the next step forward. Dr. Cooper implemented the strategies suggested by Linda and the practice quickly grew.
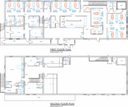
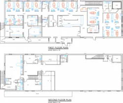
In 2000, a local dentist introduced Dr. Cooper to a promising dental student named Michael Owens. He was so impressed with Mike that he contacted his faculty advisor at the University of Maryland School of Dentistry. Dr. Cooper convinced the advisor to allow Mike to spend every Wednesday in his practice during his senior year. Upon graduation in 2001, Dr. Owens joined the practice as an associate and became a partner in July of 2002. The practice expanded to seven treatment rooms (TRs) to accommodate the new partner.
In 2004, the office was expanded from six to 15 TRs, which maximized the ground floor space. It is amazing to me that, during the renovation, the practice remained open. They practiced in the front third of the office while the back third was built out. They then moved to the back third while the middle was done and then the front third was finished. Since everyone was there, it was easy to consult with the contractor on a daily basis.
A second floor was added for business offices, as well as a large staff lounge that accommodates the 30–plus people who work at Tidewater Dental. A 20–foot conference table dominates the room which has two refrigerators, two sinks, a dishwasher, a stove and oven, four microwaves, a washer and dryer, and a locker area.
As a fringe benefit, the practice stocks the refrigerator with juices and sodas. The cabinets and freezers are filled with quick bites to eat. The annual expense is well worth the staff appreciation for the thoughtfulness of the doctors. This is also a great team–building opportunity.
The design, furnishings, and décor are meant to evoke feelings of comfort and simplicity. The office is not a Taj Mahal. Yet the patients who come through the door constantly tell the staff that this is the nicest practice they have ever been in.
People appreciate the concentration on cleanliness, organization, simplicity, and function. If a practice is innovative, clean, and new — and has a great staff attitude — patients will create a buzz about the practice in the community.
Tidewater Dental currently accommodates approximately 110 patients per day. The practice is open with a full staff from 7:30 a.m. until 4 p.m. with a ghost staff (one dentist, two assistants, one front office, and one hygienist) until 7 p.m. Monday through Thursday. The six–chair hygiene area is staffed by three hygienists and three assistants. Assisted hygiene allows for approximately 15 patients per hygienist per 7.5–hour day.
The three–doctor team sees approximately 65 patients a day. Both owner–dentists have three TRs to work out of daily. Two are used consistently, with the third being for emergencies and NPs. The associate gets two TRs, with the ability to overflow into the ninth chair as well.
Turning an emergency away is like sending a check down the block to the next dentist who has chair space. One or two TRs are dedicated to crown seats, adjustments, dentures, and whitening.
The practice sees approximately 250 new patients (NPs) per month, all of whom see a doctor for their initial exam, X–rays, and consultation. NPs can be used for fill–ins on hygiene when available, and are seen within two days of their call. Systems are in place for all patient situations to ensure efficiency.
As the practice grew in the expanded facility, it became very apparent that most of the overhead was fixed. Operating the practice more efficiently and expanding hours were the keys to increasing profit. Expanded hours also enabled the practice to accommodate in–house specialists. A key to success at Tidewater Dental is that it outsources very little dentistry. A patient who is comfortable with his or her dental environment does not want to be shuffled off to specialists.
With specialists, there are two choices: 1) give away thousands of dollars' worth of dentistry a month and receive a box of cookies for your referrals, or 2) bring the specialist to you. Bring your overhead down and increase your profit by offering the service in–house.
The specialist gets to walk into a practice with no responsibilities or worries other than his or her specialty. The patients are waiting for the specialist and they stay in–house. The practice receives a profit, as well as more referrals from its patients.
Tidewater Dental refers internally to its orthodontist who is at the practice one day a week for five hours. On Mondays, three hygienists work straight through lunch and leave at 2 p.m. The orthodontist takes over all six ops from the hygiene wing and sees patients until 7 p.m.
An oral surgeon works on Saturdays and is currently in the process of becoming licensed to practice full sedation. A recovery room will be added. When a practice sees 110 patients a day and 250 NPs a month, it is easy to refer internally and make a specialist very happy.
Key to the philosophy of these dentists is to "stick to what we're good at." Dr. Cooper and Dr. Owens are great dentists. They stick to dentistry and hire the right people to do the rest. They meet religiously a few times a week to keep ahead of the curve. There are no plateaus. If they stagnate, they will be passed. They believe in giving people what they want! Whether it be staff or patients, they listen and give. They know if they do this, they will be rewarded.
The best decision the doctors ever made was to hire Jeffery Tomcsik as CEO of Tidewater Dental. He scoured books, magazines, and message boards while his background knowledge moved the practice forward. The overhead went from a whopping 74% five years ago to less than 60% currently.
Tomcsik renegotiated insurance fees, put together hiring and review policies, and fixed holes in the collection and no–show policies. He created marketing strategies that brought 250 NPs per month.
Collections have increased by 300%, averaging a 75% increase annually through 2008. Not having to worry about human resources, finance, marketing, public relations, training, etc., allows the doctors to devote all of their time and energy to their patients. Naturally, this makes them more efficient and better dentists. Tomcsik was the key to the expansion project being successfully completed.
At Tidewater Dental, the focus is on patient comfort and education. Every treatment room is equipped with new patient chairs, as well as a flat screen TV that's mounted to the ceiling, with patient education software, an intraoral camera, cable television and movies. Each treatment room has first generation digital X–ray technology. The practice uses in–house "virtual" smile makeover technology.
Hot towel treatment is available for patient comfort and convenience. Tidewater Dental takes pride in being able to offer "one stop" dentistry. Very little dentistry gets referred out and patients appreciate that!
The TRs are standardized and stocked identically. Dental products were selected so that every op will provide a useful space for any procedure. Digital radiograph equipment was selected based on efficiency, comfort, quality, reliability, and ease of use. Dentrix is used to communicate throughout the office.
Drs. Cooper and Owens offer the following advice to others who wish to follow in their footsteps.
"Put a clear plan in place. Put the right team together. Be the ‘dentist' and delegate the rest to team members who can handle the work. Then put trust in them! Also, study plans and models that you know work. Don't mimic them, but start with them, and build a hybrid. Think outside the box. Be adventurous but make sure the right people are in place to see it through."
Tidewater Dental
Office equipment checklist
Office equipment checklist
Pelton & Crane Spirit 3000 Series chairs
Pelton & Crane Spirit 1500 Ellipse delivery system
Pelton & Crane cabinets
Belmont Equipment Belray Model 96 radiographic system
DentalEZ Star Dental Titan E–lectric handpieces
Medidenta International air abrasion
Dentsply Cavitron Jet Plus
Soredex Digora Optime digital radiograph processor
Air Techniques ScanX digital radiograph processor
Kerr L.E. Demetron II curing lights
Coltène Whaledent BioSonic Ultrasonic Cleaner UC300R
SciCan Statim 5000 Autoclave Sterilizer
David J. Cooper, DDS / Owner GP
Michael W. Owens, DDS / Owner GP
Joseph Wareham, DMD / Associate GP
Wayne L. O'Roark, DDS, DABOI, Contract Dentist Implants only
Charles DeRoo, DMD, MS, Contract Dentist Ortho only
Gregory C. Romanow, DMD, Contract Dentist Oral Surgery only
Jeffrey D. Tomcsik, CEO
21534 Great Mills Road • Lexington Park, MD 20653
Phone: (301) 862–3900
Cosmetic and general dentistry, sedation, implants, snoring therapy
Web site: www.TidewaterDental.com
e–mail: [email protected]






