Wisconsin WOW
Dr. Nick AbuJamra’s prosthodontic practice in Green Bay, Wis., earns this year’s top honor in the Dental Office Design Competition
If the old saying of “different is good” is really true, then it’s no wonder Dr. Nick AbuJamra (pictured above) walked away as the winner of the 2006 Dental Office Design Competition, presented by Matsco and Dental Economics®.
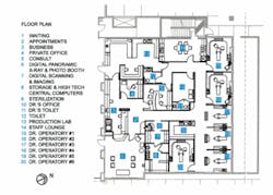
Dr. AbuJamra’s prosthodontic practice in Green Bay, Wis., is not only an amazing piece of architecture, but also a pretty outstanding business model. He is one of seven specialists who practice in different suites at the East Shore Professional Center, joining an oral surgeon, endodontist, and periodontist under the shell of the massive building.
“All of our leases were expiring near the same time so we thought it would make sense for us to build a location where we could all work together,” Dr. AbuJamra explained. “Essentially, each doctor had his own condominium for his practice and could build it out however he desired.”
It didn’t take long for Dr. AbuJamra to decide he wanted a high-tech practice that was esthetically pleasing and had plenty of room. His first practice was the polar opposite - a cramped building constructed in 1974 that allowed very little flexibility when it came to scheduling or installing technology.
“When we were on the phone, the conversation could be heard throughout the office,” Dr. AbuJamra recalled. “There was no privacy. Everyone was cramped. How bad was it? My office served as the consultation room as well. Before a patient would come in for consultation, my staff would pull the Hefty Bag Trick - shoving everything from my office into a trash bag to get it out of the way. Every day at the end of the day, we’d get things back out of the bag. It was a mess.”
It was also not the best way for Dr. AbuJamra to explain the virtues of receiving care from his practice. He knew that his patients had a perception of him and his level of work just from the dated look of the office.
“The esthetics of that office alone didn’t reflect the kind of practice we wanted,” he said. “Stepping into my office was like stepping into a time warp.”
Knowing he wanted to upgrade his office, he began talking to Jeff and Pat Carter from Practice Design Group and looking for new land for his practice. When he was able to combine forces with other specialists, things started clicking. It was four years from the time Dr. AbuJamra first envisioned a new practice until his doors were opened at the East Shore Professional Center, but the wait was well worth it.
“We laugh and call this a one-stop facility for our patients,” Dr. AbuJamra smiled. “Having the oral surgeons nearby, we can work together on implant patients and those patients can walk out the front door and go on with their lives. We all work well together and help each other. Even though there isn’t a general practice in our building, we consider the GP a very important part of the team.”
Dr. AbuJamra describes his 3,800-square-foot, five-operatory part of the building as “an elegant, warm, and inviting clinic that assures patients that each detail of their dental care will be thought of. We believe we have achieved this and are now busy helping our patients realize their dream smile and optimal dental health.”
When asked about the one thing he likes most about his practice, Dr. AbuJamra simply couldn’t decide.
“Certainly the esthetics play a role in creating the ‘atmosphere’ we desire,” said the 1996 graduate of Creighton University. “Upgraded dental technology and equipment have allowed our practice to provide our patients with state-of-the-art dentistry. The larger space has allowed better organization of equipment and supplies and more ‘elbow room’ for our patients and staff, which contributes to a greater ease of operation and less stress. Even the improved parking has been mentioned by many of our patients.”
Dr. AbuJamra is also quick to point out his practice’s technology upgrades. He cites two pieces of technology as key to his practice’s success:
1) Digital radiography - “Digital radiography has allowed us to better communicate with patients regarding their treatment needs. Their ability to visualize problems allows them to participate in the treatment process and ensures better compliance with treatment recommendations.”
2) Internet access from all operatories - “We can more efficiently communicate with each other and the other specialists with whom we work. This facilitates patient treatment, allowing for more accurate and prompt interoffice communication. We can also communicate with our laboratory by sending photographs to help in shade-matching of restorations.”
And what advice would Dr. AbuJamra give to any dentist who is considering building a new practice?
“Retain qualified professional advice on all levels. Our project is unique in that it involved seven doctors in four different practices who were moving into the same facility. Without the help of our design team, we would have never been able to accomplish this level of design.”
And, after four years of waiting, has his new practice been everything Dr. AbuJamra hoped it would be?
Things that stood out about Dr. AbuJamra's practice to the competition judges...
"Great design. It's a very functional practice that is beautifully decorated. It also showcases an excellent use of technology." -- Judge 1
"The outcome is a result of Nick's unique and compelling vision for his practice and patients." -- Judge 2
"The interior space of this office is an excellent example of the expression of professionalism through design." -- Judge 3
"Nick was driven by knowing he needed to upgrade his practice. He was considered the best prosthodontist in the area, but his previous office didn't live up to his level of dentistry. Now it does." -- Judge 4









